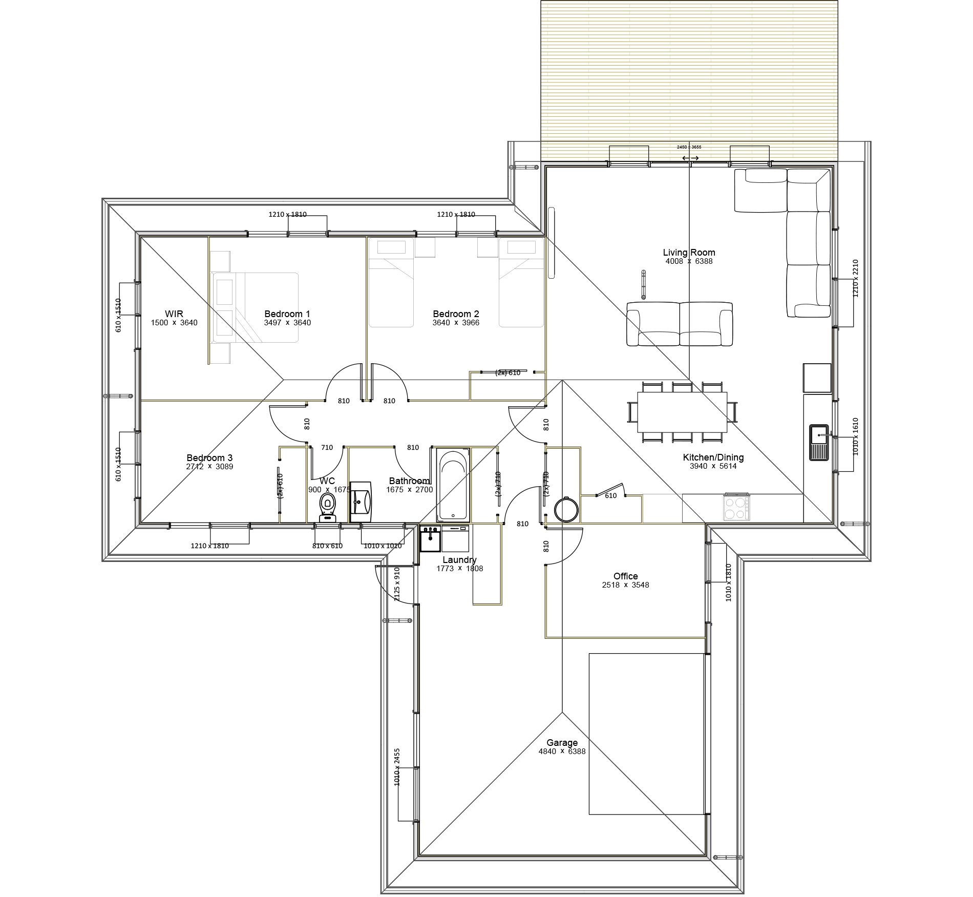
Awanui 162

Spacious four-bedroom with extra utility
Bedrooms4
Bathrooms 2
Area
162 m²
16.38 m × 9.10 m

The Awanui is a generously sized 162 sqm transportable home that combines modern design with everyday practicality. Perfect for families wanting extra space or multi-generational living, it balances private zones and shared areas beautifully.

At its heart is an expansive open-plan kitchen, dining, and living space that connects directly to outdoor entertaining through wide doors, ideal for Northland’s warm climate and relaxed lifestyle. The master suite includes a walk-in wardrobe and private ensuite, while three additional bedrooms share a well-appointed family bathroom and separate toilet. A dedicated laundry, office, and attached garage add functional convenience, making the Awanui a home that truly works for family life.

Highlights

  • Expansive open-plan kitchen, dining, and living opening to outdoor living
  • Master bedroom with ensuite and walk-in wardrobe
  • Three additional bedrooms plus office for flexible living
  • Family bathroom, separate toilet, and full laundry with access to the exterior
  • Attached single garage with internal entry
  • Spacious, transportable footprint (16.38 m × 9.10 m)

Roof Profiles Available

Choose your style: Gable for a timeless profile.

Gable
Timeless, symmetrical pitch that’s simple, efficient, and familiar.

Request information and an estimate for Awanui 162

Awanui 162 Renders

Floorplan