Kiwi 92

Compact family home with a generous deck
Bedrooms3
Bathrooms 1
Area
92 m²
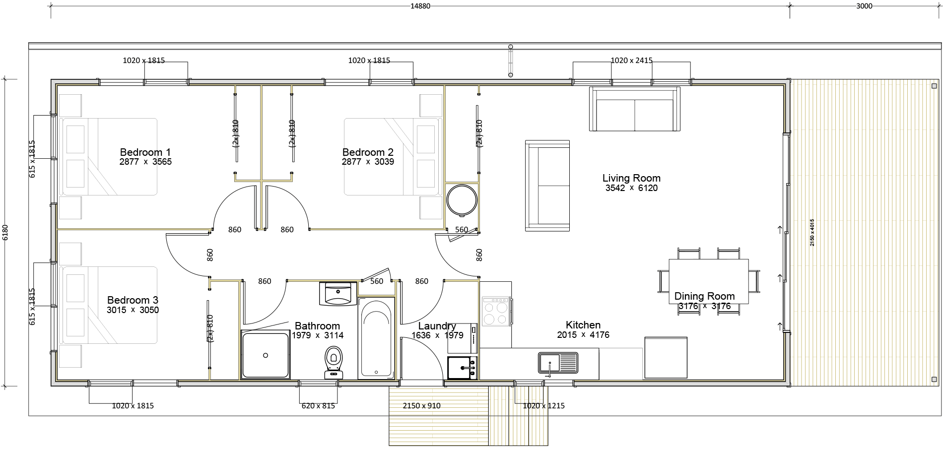
14.88 m × 6.18 m

The Kiwi is a practical and stylish 92 sqm transportable home, ideal for families, couples, or those looking for a modern secondary dwelling. With its long, open layout and full-width covered deck, this plan captures the essence of relaxed indoor, outdoor Northland living.

The open-plan kitchen, dining, and living area is positioned at the front of the home, featuring large sliding doors that open directly to the deck, perfect for summer entertaining or enjoying the evening sun. Down the central hallway are three comfortable bedrooms, a full family bathroom, and a convenient laundry nook, designed to make everyday life simple and efficient.

Highlights

  • Bright, open-plan living with seamless outdoor connection
  • Three bedrooms positioned for privacy and flexibility
  • Functional kitchen and dining space ideal for family meals or guests
  • Dedicated laundry and full family bathroom
  • Compact and transport-ready footprint (14.88 m × 6.18 m)

Roof Profiles Available

Choose your style: Mono-pitch for a sharp, contemporary edge or Gable for a timeless profile.

Mono
Clean single-slope roofline for a sharp, modern profile.
Gable
Timeless, symmetrical pitch that’s simple, efficient, and familiar.

Request information and an estimate for Kiwi 92

Kiwi 92 Renders

Floorplan