Opua 54

Compact, modern living with a generous feel
Bedrooms1
Bathrooms 1
Area
54 m²
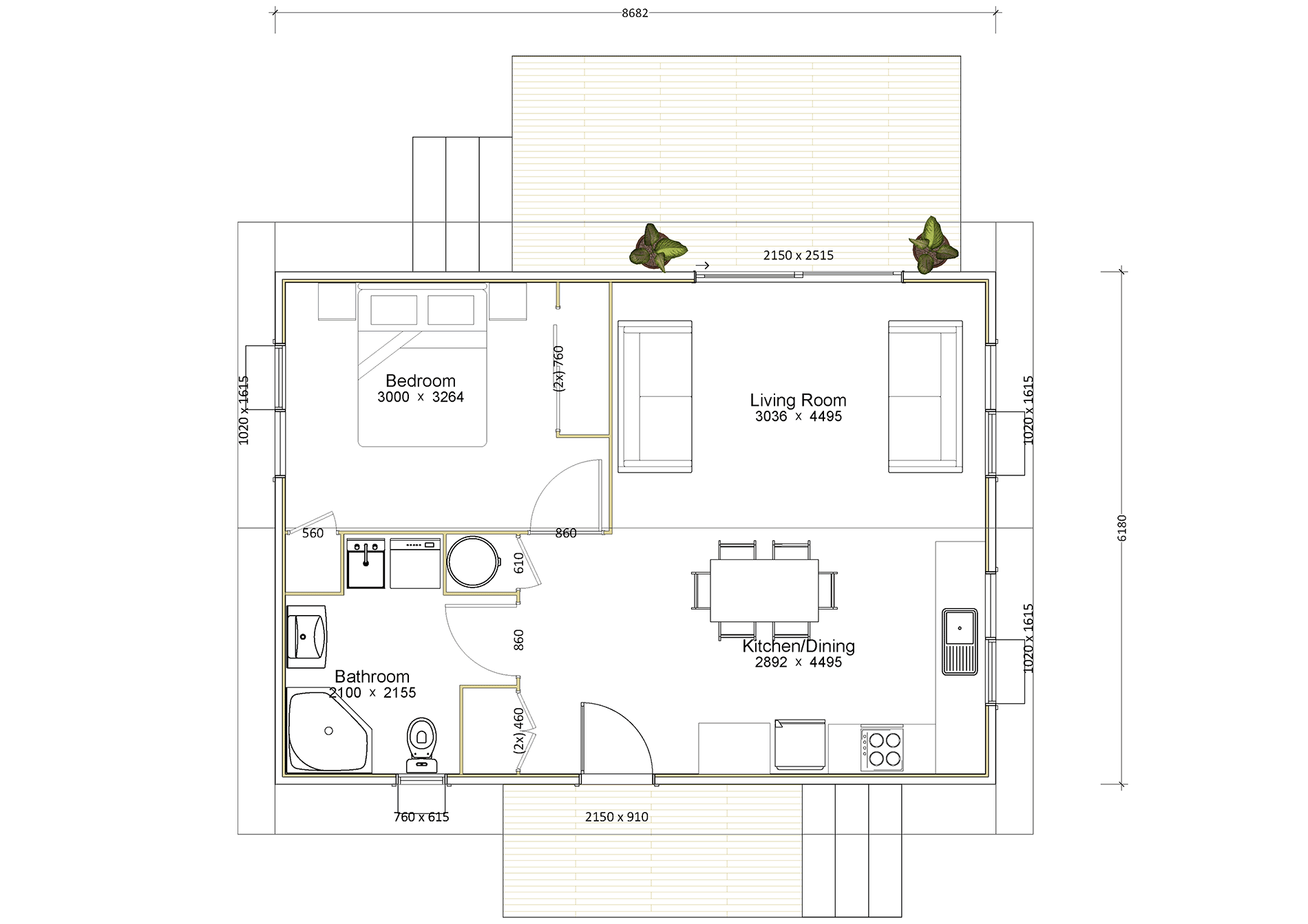
8.68 m × 6.18 m

The Opua is a smart 54 sqm prefab/transportable home that’s perfect as a first home, minor dwelling, bach, or staff accommodation. A light-filled open-plan kitchen, dining and living space opens to outdoor decking, creating an easy flow for everyday living in a small footprint. The efficient rectangle—approximately 8.68 m × 6.18 m—keeps transport simple and helps the home sit neatly on tight or tricky sites.

A well-proportioned bedroom sits beside the bathroom, with practical storage opportunities off the main living zone. The straightforward plan minimises wasted space, making the Opua an affordable, fast-to-deliver solution for Northland conditions.

Highlights

  • Open-plan living that connects to outdoor space
  • Efficient footprint for straightforward transport and siting (8.68 m × 6.18 m)
  • One generous bedroom + full bathroom in a tidy, value-focused layout

Roof Profiles Available

Choose your style: Mono-pitch for a sharp, contemporary edge or Gable for a timeless profile.

Mono
Clean single-slope roofline for a sharp, modern profile.
Gable
Timeless, symmetrical pitch that’s simple, efficient, and familiar.

Request information and an estimate for Opua 54

Opua 54 Renders

Floorplan