Potahi 121

Family-ready four-bedroom with effortless flow
Bedrooms4
Bathrooms 1
Area
121 m²
16.78 m × 7.24 m

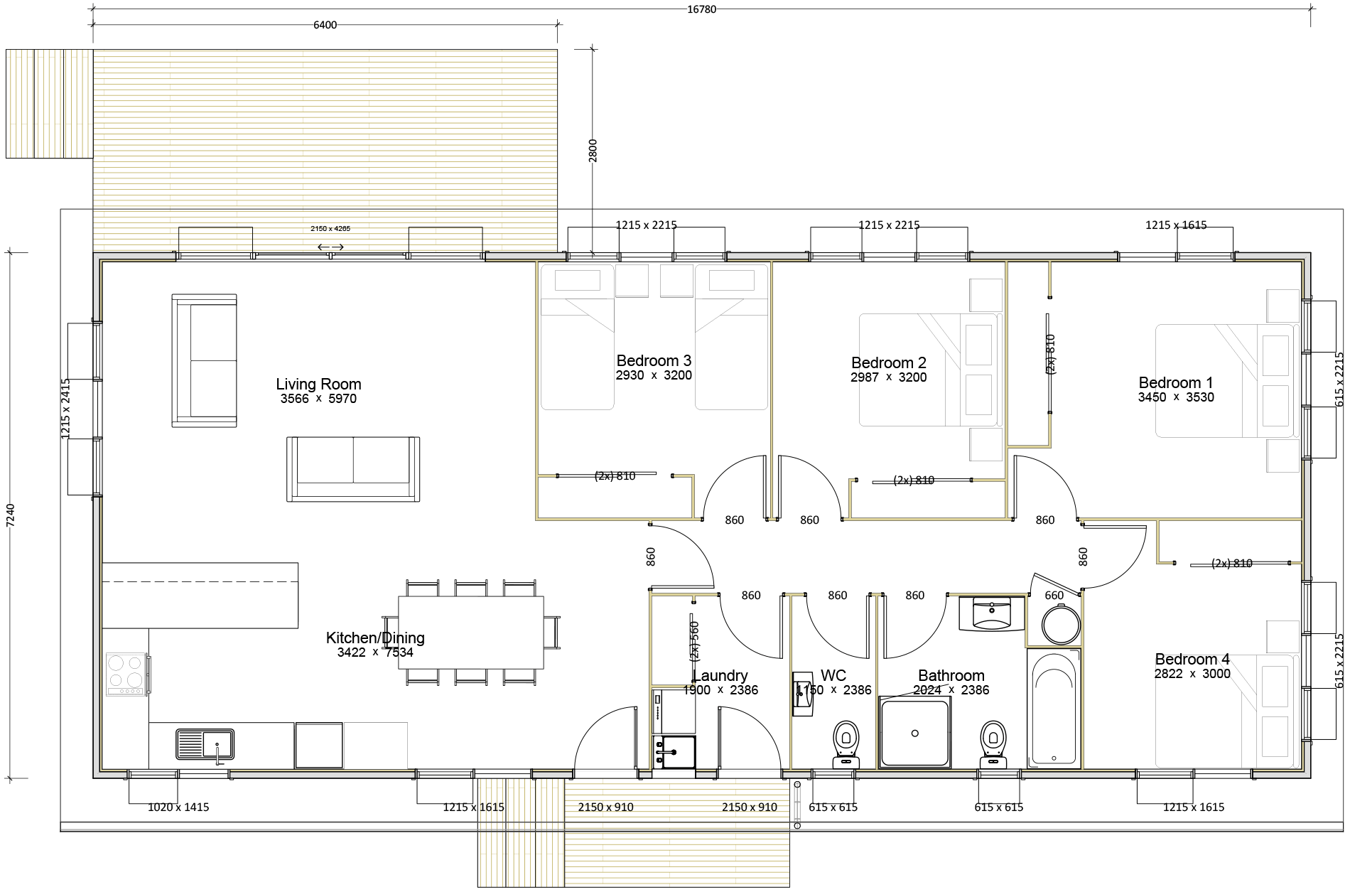
The Potahi is a smart, efficiently planned 121 sqm transportable home designed to maximise comfort on a compact footprint, ideal for growing families, rental portfolios, staff housing or papakāinga developments in Northland. A light-filled open-plan kitchen, dining and living zone anchors the home and opens directly to outdoor living, making everyday life and weekend entertaining easy.

A central hallway connects four well-proportioned bedrooms, while a family bathroom, separate toilet, and a full laundry with external access keep the morning rush flowing smoothly. The straightforward 16.78 m x 6.40 m layout suits a wide range of sites and simplifies transport and installation.

Highlights

  • Open-plan living that connects to a deck or patio
  • 4 bedrooms grouped for privacy and easy supervision
  • Separate WC + dedicated laundry with outside access
  • Efficient rectangular footprint for straightforward transport and siting (16.78 m × 6.40 m)

Roof Profiles Available

Choose your style: Mono-pitch for a sharp, contemporary edge or Gable for a timeless profile.

Mono
Clean single-slope roofline for a sharp, modern profile.
Gable
Timeless, symmetrical pitch that’s simple, efficient, and familiar.

Request information and an estimate for Potahi 121

Potahi 121 Renders

Floorplan