Pukepoto 91

Smart three-bed living with an easy flow
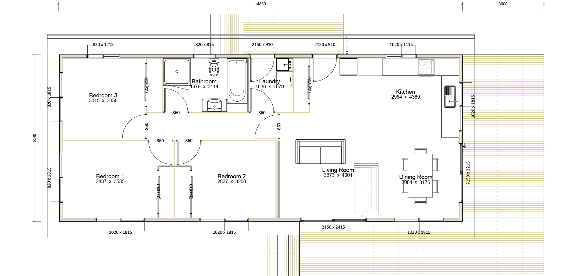
Bedrooms3
Bathrooms 1
Area
91 m²
14.88 m × 6.14 m

The Pukepoto is a smartly designed 91 sqm transportable home that offers the ideal balance of style, comfort, and functionality. Its efficient footprint makes it perfect for a family home, staff housing, or as a rental investment, compact enough to transport easily yet spacious enough to live comfortably.

The open-plan kitchen, dining, and living area provides a warm, central hub that connects directly to outdoor living through wide sliding doors. Three well-proportioned bedrooms are positioned along the hallway, complemented by a full family bathroom and a dedicated laundry with external access for day-to-day convenience.

Highlights

  • Open-plan kitchen, dining, and living that opens to a spacious deck
  • Three comfortable bedrooms offering flexibility for families or guests
  • Full family bathroom + laundry with outdoor access
  • Easy-to-transport layout (14.88 m × 6.14 m) for simple site placement

Roof Profiles Available

Choose your style: Mono-pitch for a sharp, contemporary edge or Gable for a timeless profile.

Mono
Clean single-slope roofline for a sharp, modern profile.
Gable
Timeless, symmetrical pitch that’s simple, efficient, and familiar.

Request information and an estimate for Pukepoto 91

Pukepoto 91 Renders

Floorplan