Te Paki 60

A smart two-bed retreat with a covered deck
Bedrooms2
Bathrooms 1
Area
60 m²
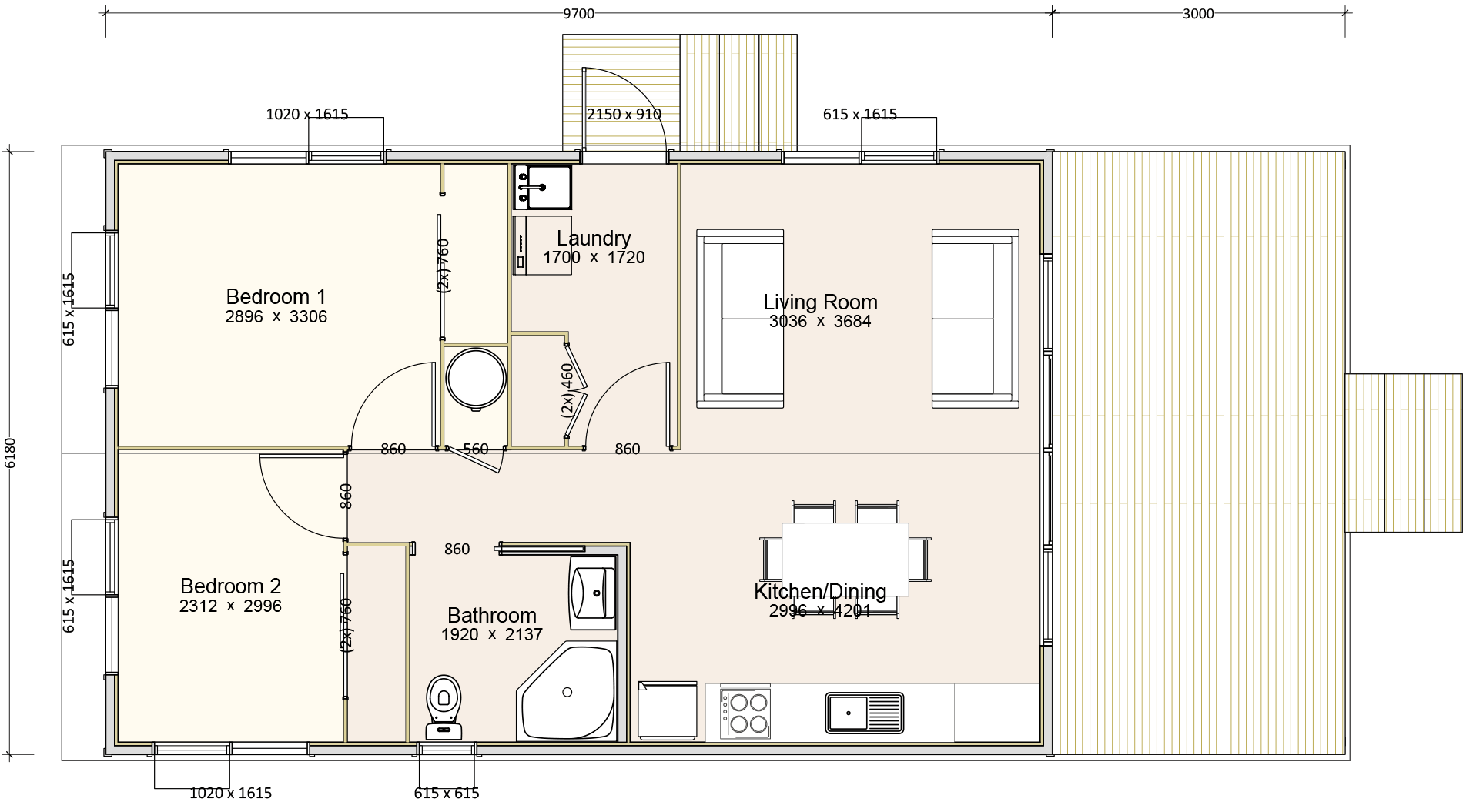
9.70 m × 6.18 m

Te Paki is a clever 60 sqm transportable home that fits beautifully as a first home, downsizer, minor dwelling or staff accommodation. An open-plan kitchen, dining and living area anchors the layout and opens to a generous front deck for easy summer living. The efficient rectangle, approximately 9.70 m × 6.18 m, keeps transport straightforward and helps the home sit neatly on compact or rural sites.

Two comfortable bedrooms sit off the main living zone, alongside a family bathroom and a dedicated laundry with external access, practical touches that make day-to-day life simple and organised.

Highlights

  • Light-filled open-plan living that connects to a sheltered deck
  • Two well-proportioned bedrooms for couples, small families, or guests
  • Laundry with outside access to keep muddy boots and beach towels out of the way
  • Transport-friendly footprint (9.70 m × 6.18 m) for straightforward siting

Roof Profiles Available

Choose your style: Mono-pitch for a sharp, contemporary edge or Gable for a timeless profile.

Mono
Clean single-slope roofline for a sharp, modern profile.
Gable
Timeless, symmetrical pitch that’s simple, efficient, and familiar.

Request information and an estimate for Te Paki 60

Te Paki 60 Renders

Floorplan