Waima 69

Compact, practical living with a smart, efficient layout
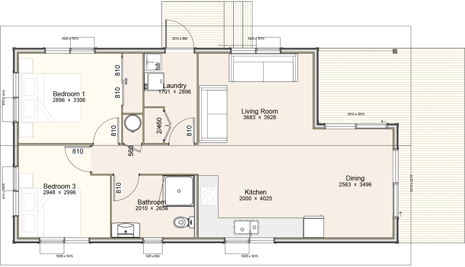
Bedrooms2
Bathrooms 1
Area
69 m²
m × m

The Waima is a well-balanced 69 sqm, two-bedroom home designed to maximise usability within a compact footprint. Ideal for first homes, minor dwellings, or rental opportunities, it delivers comfortable living without wasted space.

The open-plan kitchen, dining, and living area forms the heart of the home, creating a welcoming central space that connects easily to outdoor living. The layout keeps everything functional and accessible, making everyday living simple and efficient.

Both bedrooms are well-sized and positioned for easy access to the bathroom, while a separate laundry adds practicality without compromising the main living areas. With its straightforward design and clean flow, the Waima is a reliable option for a wide range of living situations.

Highlights

  • Open-plan living designed for efficiency and flow
  • Two well-sized bedrooms
  • Functional kitchen with good connection to dining and living
  • Full bathroom with separate laundry
  • Compact footprint suited to smaller sections or secondary dwellings

Roof Profiles Available

Choose your style: Mono-pitch for a sharp, contemporary edge or Gable for a timeless profile.

Mono
Clean single-slope roofline for a sharp, modern profile.
Gable
Timeless, symmetrical pitch that’s simple, efficient, and familiar.

Request information and an estimate for Waima 69

Waima 69 Renders

Floorplan