Wharenui 170

Big, practical living for large families
Bedrooms5
Bathrooms 2
Area
170 m²
21.24 m × 8 m

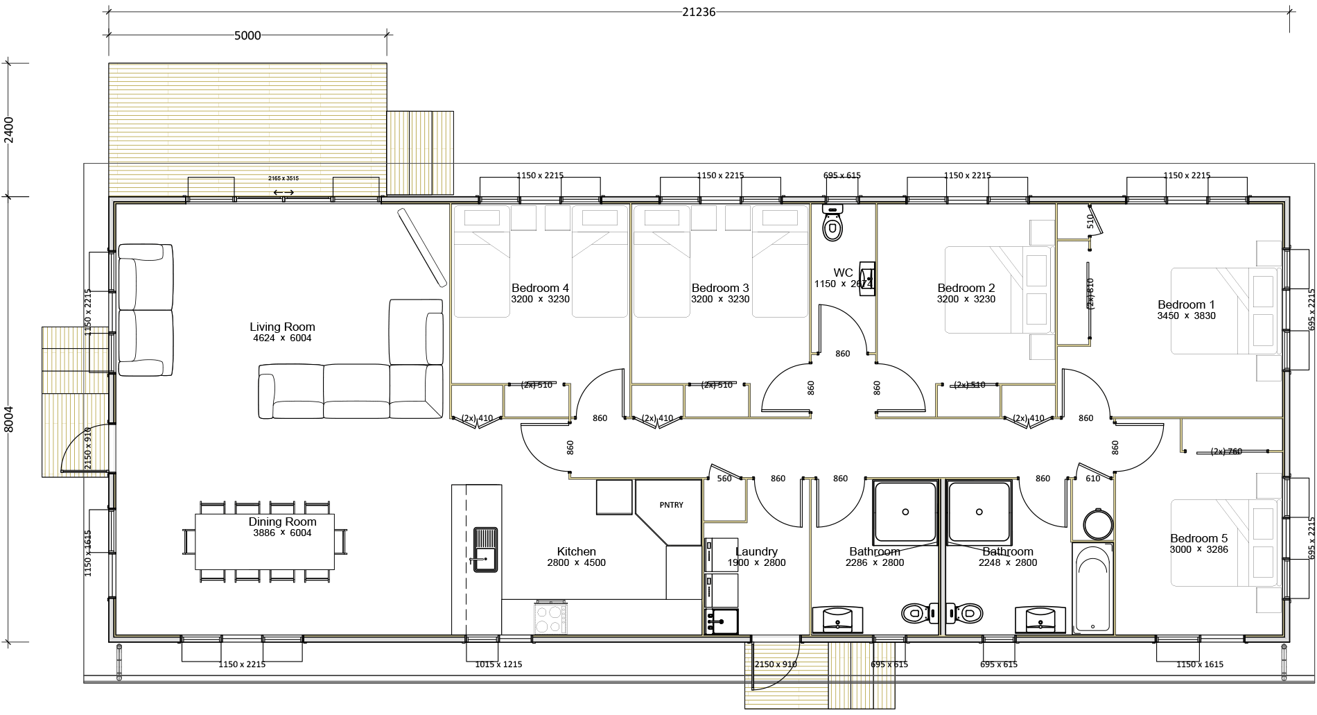
The Wharenui is the largest design in the range — a 170 sqm, five-bedroom transportable home that offers serious space for growing families or shared living arrangements. With a thoughtful layout that balances private retreats and communal areas, it’s designed for comfort, connection, and adaptability.

A central open-plan kitchen, dining, and living area opens directly onto a spacious deck, creating the perfect hub for entertaining or relaxing. The master suite includes an ensuite and walk-in wardrobe, while four additional bedrooms are positioned to provide privacy and convenience. Two bathrooms, a separate toilet, and a full laundry make this layout ideal for large families or worker accommodation setups.

Highlights

  • Expansive open-plan living area connecting to outdoor deck
  • Five full-sized bedrooms including private master suite with ensuite and walk-in wardrobe
  • Two full bathrooms plus a third separate toilet for convenience
  • Full laundry with external access
  • Large, practical footprint (21.24 m × 8.00 m) offering excellent flow and proportion

Roof Profiles Available

Choose your style: Mono-pitch for a sharp, contemporary edge or Gable for a timeless profile.

Mono
Clean single-slope roofline for a sharp, modern profile.
Gable
Timeless, symmetrical pitch that’s simple, efficient, and familiar.

Request information and an estimate for Wharenui 170

Wharenui 170 Renders

Floorplan